📑 Inhaltsverzeichnis

Aussteifende Wandscheiben im Holzrahmenbau

Stand: 15.11.2025

Von: Yannick Wild (Bauingenieur, Holzbauingenieur)

Aussteifende Wandscheibe in Holzrahmenbauweise mit Zuganker und Schubanker auf Betonbodenplatte

Aussteifende Wandscheiben im Holzrahmenbau sind für Standsicherheit und Gebrauchstauglichkeit eines Gebäudes unverzichtbar. Die Umsetzung eines fachlich stimmigen Aussteifungskonzepts stellt viele Tragwerksplaner jedoch vor Herausforderungen – insbesondere bei der Ermittlung der Steifigkeiten und den Voraussetzungen, die dafür erfüllt sein müssen.Aussteifende Wände im Holzrahmenbau sind für Standsicherheit und Gebrauchstauglichkeit eines Gebäudes unverzichtbar. Die Umsetzung eines fachlich richtigen Aussteifungskonzepts stellt für viele Tragwerksplaner im Holzbau jedoch noch eine Herausforderung dar, insbesondere die Frage der Steifigkeitsermittlung und die, derVoraussetzungen, die erfüllt sein müssen, stellt häufig Fragen. 

Das Wichtigste in Kürze

  • Wände haben die Aufgabe die horizontalen Lasten weiterzuleiten.
  • Die Einwirkungen auf die einzelnen Wände sind von der Steifigkeit und der Länge abhängig. 
  • Die Steifigkeit einer Holztafelwand wird über die Beplankung definiert.
  • Für das Steifigkeitskriterium müssen Voraussetzungen eingehalten werden.

Warum ist die Aussteifung im Holzbau für viele eine Herausforderung?

Die Aussteifung im Holzbau basiert im Wesentlichen auf der Schubfeldtheorie und unterscheidet sich damit von der Biegetheorie des Massivbaus, der nach wie vor die dominierende Bauweise in Deutschland ist. Aufgrund der großen Masse und Steifigkeit des Stahlbetonbaus wurden Aussteifungskonzepte historisch oft konstruktiv gelöst; die Einwirkungen waren häufig so gering, dass ausführliche Nachweise nicht maßgebend wurden. Mit dem Aufkommen des Holzrahmenbaus und seiner geringeren Masse gewann die ausführliche Bemessung der Aussteifung wieder deutlich an Bedeutung – und stellt viele Planer vor neue Herausforderungen

Variante 1: Lastzuweisung nach Wandsteifigkeiten

Eine weit verbreitete und gut nachvollziehbare Herangehensweise ist die Lastzuweisung nach Wandsteifigkeiten. Dabei werden die aus Wind oder Erdbeben resultierenden Horizontallasten steifigkeitsproportional auf die aussteifenden Wände verteilt.

Diese Annahme beruht auf der Überlegung, dass eine Wand mit theoretisch unendlicher Steifigkeit langfristig nahezu die gesamte Last übernehmen würde: Die übrigen, nachgiebigeren Wände verformen sich stärker, entziehen sich damit der Lastabtragung und beteiligen sich folglich kaum noch am Tragwiderstand.

Nachteil: Der Aufwand zur Steifigkeitsermittlung ist deutlich höher – insbesondere bei Mischsystemen (z. B. Holztafelwände und Brettsperrholzwände).

Vereinfachung für vergleichbare Holztafelwände:
Man kann relative Steifigkeitsfaktoren ansetzen, z. B. k = 1 für einseitig beplankte Wände und k = 2 für beidseitig gleich beplankte Wände. Die horizontale Last wird dann proportional zu k · Wandlänge verteilt (Lastanteil ∝ k·L), d. h. als „Windlast / steifigkeitsgewichtete Wandlänge“ [kN/m].

Beispiel:

  • 5 Wände mit k = 1 und L = 2 m ⇒ Summe: 5 × (1·2) = 10m

  • 1 Wand mit k = 2 und L = 1 m ⇒ Summe: 2m

  • Gesamt Σ(k·L) = 12m

Jede Wand würde somit 1/6 der gesamten Horizontalkraft aufnehmen.

Das Bedeutet, die kurze, steifere Wand erhält damit denselben Gesamtlastanteil wie jede der längeren, weniger steifen Wände – aufgrund ihres erhöhten Steifigkeits-Wertes.

Damit ist diese Variante unter der Bedingung vergleichbarer Wandtypen eine sehr einfache Methode, Horizontalkräfte zuzuweisen.

Unterschiedliche Beplankungen

Nach Eurocode 5 ist es zulässig, unterschiedliche Beplankungsarten zu einer kombinierten Steifigkeit der Wandscheibe zu addieren. Dabei ist zu beachten, dass der Beitrag der weicheren Platte jedoch abgemindert werden muss.

Beispiel:

  • Eine einseitig mit 15 OSB beplankte Holzrahmenwand erhält den Steifigkeitswert k=1

  • Eine einseitig mit Gipskarton beplankte Holzrahmenwand erhält den Steifigkeitswert k=0,8
  • Eine beidseitig mit OSB beplankte Wand erhält k=2

  • Eine Wand mit OSB auf der einen Seite und Gipskarton auf der anderen ist nicht linear mit einer OSB-Beplankung gleichzusetzen; der Beitrag der Gipskartonplatte ist wegen ihrer geringeren Steifigkeit zusätzlich reduziert anzusetzen. Die resultierende Steifigkeit liegt daher nicht bei 1,8 sondern bei 1,0+(0,75*0,85) = 1,637

Bedingungen für das Steifigkeitsprinzip

Damit horizontale Lasten nach dem Steifigkeitsprinzip der Wände abgetragen werden können, muss die vorhandene Deckenscheibe ebenfalls ausreichend steif sein. In unserem separaten Artikel zu schubweichen und schubsteifen Deckenscheibe haben wir die Unterschiede erläutert.

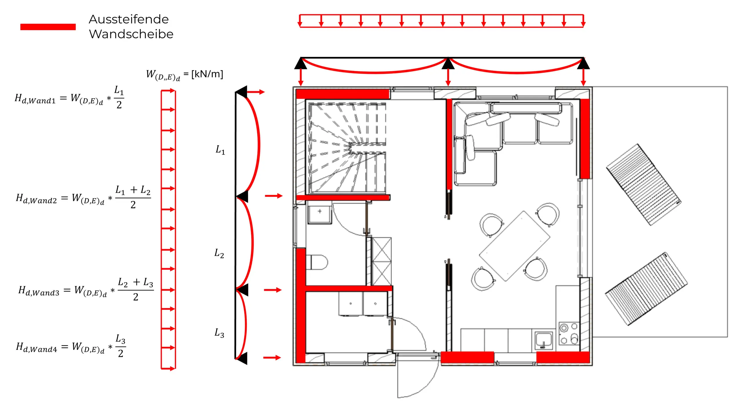
Variante 2: Lastverteilung nach Einzugsbereichen

Sind die Bedingungen für eine ausreichend steife Deckenscheibe nicht erfüllt, können die horizontalen Lasten nicht proportional zur Wandsteifigkeit verteilt werden. Ursache ist, dass die Deckenscheibe die Lasten nicht über die gesamte Fläche weiterleiten kann, sondern sich frühzeitig verformt bzw. sich der Lastabtragung entzieht, bevor die Kräfte die geplanten Wandscheiben erreichen.

Schubweiche und Schubsteife Deckenscheiben im Vergleich

In diesem Fall sind die Lasten entsprechend den Abständen bzw. Einzugsbreiten der Wände aufzuteilen. Außenwände erhalten dadurch grundsätzlich geringere Anteile als Innenwände.

Wandverteilung im Gebäude

Beim Entwurf eines Gebäudes sollte darauf geachtet werden, dass ausreichend viele gleichartige Wände gleichmäßig über den Grundriss verteilt sind. Dass sich dies nicht immer mit den Wünschen von Bauherren und Architekten deckt, ist naheliegend.

Sind nicht genügend aussteifende Wände vorhanden, müssen zusätzliche horizontale Kräfte aus Torsion des Gebäudes berücksichtigt werden.

Nachweise von Wandscheiben

Dabei ist die Horizontalkraft am Wandkopf als Einzellast Fh anzusetzten und die resultierenden abhebenden und drückende Kräfte über die folgenden Formeln zu ermitteln. 

Berechnung der Zugkraft in einer aussteifenden Holztafelwand

Folgende Nachweise der Wandscheibe sind zu führen:

  1. Nachweis der Beplankung auf Schub und Zug.

  2. Nachweis der Verbindungsmittel, die die Schubkräfte aus der Beplankung in die Holzkonstruktion einleiten (häufig maßgebend).

  3. Beulnachweis der Beplankung (Nachweis der Beulsicherheit).

Verankerung von Wänden

Zum Thema Fundamentverankerung von Holzrahmenbauwänden haben wir einen separaten Artikel verfasst. Darin nennen wir zahlenbasierte Beispiele und moderne Verankerungsmethoden, die für Zimmereien unverzichtbar sind und für Tragwerksplaner ein zentrales – und häufig missachtetes – Problem lösen.

Häufig gestellte Fragen

ür kleine Eingriffe (z. B. Wanddurchbruch) liegen die Kosten für einen Statiker oft zwischen 600–1.500 €. Für einen EFH-Neubau sind Statiker-Kosten von ca. 4.500–12.000 € realistisch – abhängig von Umfang und Änderungen. Richtwerte.

Grundhonorar für Tragwerksplanung und Statik-Berechnung, Zusatznachweise (z. B. Aussteifung), Ortstermine, Planstände/Korrekturschleifen, Nebenkosten (Fahrt/Druck).

Von der Konzeptstatik über Bemessungen (Bauteile, Anschlüsse) bis zu Positionsplänen und Dokumentation der Nachweise – inkl. Abstimmungen mit Architekt/Baufirma.

Kleinere Eingriffe: 3–10 Werktage. Anbau/EFH: 2–6 Wochen – abhängig von Unterlagen, Auslastung und Änderungsrunden.

mit wenigen Klicks den passenden Experten im Holzbau finden
Holzbau-experten.de_Logo-e1759668459840.png